Met een eigen account kun je panden volgen, opslaan als favoriet, je zoekprofiel opslaan en jouw eigen notities bij een huis maken.
Verkocht: Van Durenstraat 2, 7415 BG Deventer
€ 475.000,- k.k.
| Type object | Woonhuis, eengezinswoning, hoekwoning |
|---|---|
| Woonoppervlakte | 148,7 m² |
| Status | Verkocht |
| Perceeloppervlakte | 168 m² |
|---|---|
| Aanvaarding | In overleg |
Beschrijving
**Moderne, instapklare hoekwoning op een toplocatie**
Van Durenstraat 2 – Deventer
---
**Wonen zonder zorgen in een jonge, gezellige buurt**
Ben je op zoek naar een fijne, lichte gezinswoning waar je zó in kunt trekken? Goed nieuws! Aan de knusse
Van Durenstraat 2 in Deventer staat een moderne hoekwoning uit 2011 die direct klaar is voor jou en je
gezin. Deze plek biedt volop leefruimte, een zonnige tuin én alle comfort die je maar wenst. Perfect voor
starters én jonge gezinnen die het liefst vandaag nog hun verhuisdozen uitpakken.
Van Durenstraat 2 – Deventer
---
**Wonen zonder zorgen in een jonge, gezellige buurt**
Ben je op zoek naar een fijne, lichte gezinswoning waar je zó in kunt trekken? Goed nieuws! Aan de knusse
Van Durenstraat 2 in Deventer staat een moderne hoekwoning uit 2011 die direct klaar is voor jou en je
gezin. Deze plek biedt volop leefruimte, een zonnige tuin én alle comfort die je maar wenst. Perfect voor
starters én jonge gezinnen die het liefst vandaag nog hun verhuisdozen uitpakken.
Indeling
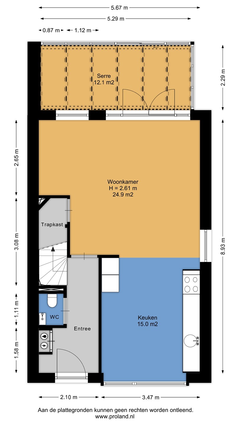
Begane grond
**Licht, luchtig en lekker ruim**
Stap binnen en je voelt het meteen: thuis. De brede hal geeft toegang tot een verrassend lichte woonkamer
waar het zonlicht gul binnenvalt door flinke raampartijen. Hier kun je heerlijk hangen op de bank na een
drukke dag, met een fraai uitzicht op het groen en de stijlvolle veranda. Gooi de tuindeuren open en laat
buiten naar binnen stromen—genieten!
De open keuken aan de voorkant van de woning maakt het plaatje compleet. Met moderne
inbouwapparatuur als een vijfpits gaskookplaat, vaatwasser, oven en natuurlijk een ruime koelkast, wordt
koken hier echt een feestje. Nodig vrienden uit, zet een pot verse koffie of kook samen, want hier heb je alle
ruimte om je uit te leven.
**Licht, luchtig en lekker ruim**
Stap binnen en je voelt het meteen: thuis. De brede hal geeft toegang tot een verrassend lichte woonkamer
waar het zonlicht gul binnenvalt door flinke raampartijen. Hier kun je heerlijk hangen op de bank na een
drukke dag, met een fraai uitzicht op het groen en de stijlvolle veranda. Gooi de tuindeuren open en laat
buiten naar binnen stromen—genieten!
De open keuken aan de voorkant van de woning maakt het plaatje compleet. Met moderne
inbouwapparatuur als een vijfpits gaskookplaat, vaatwasser, oven en natuurlijk een ruime koelkast, wordt
koken hier echt een feestje. Nodig vrienden uit, zet een pot verse koffie of kook samen, want hier heb je alle
ruimte om je uit te leven.
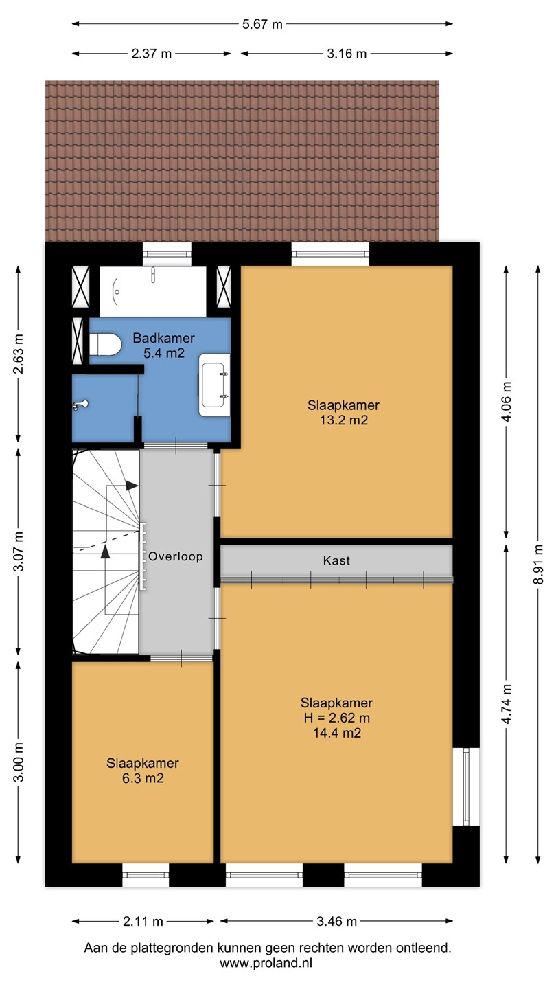
Eerste verdieping
**Ruimte, rust én vier slaapkamers**
Op de eerste verdieping vind je drie nette, praktische slaapkamers. Licht, fris en strak afgewerkt—ideaal
als kinderkamer, (thuis)werkkamer, hobbyruimte of walk-in closet. De badkamer is modern en compleet:
een heerlijk ligbad, ruime douche, dubbele wastafel en een tweede toilet. Alles bij elkaar, gewoon
superhandig ingedeeld.
De tweede verdieping mag er ook zijn! Door de aanwezigheid van een grote dakkapel is hier een royale
vierde slaapkamer ontstaan. Daarnaast vind je hier een aparte wasruimte (lekker uit het zicht), waarop je
de wasmachine, droger en extra opbergruimte kwijt kunt. Hier heb je dus écht lekker veel plek voor het
hele gezin én al je spullen.
Op de eerste verdieping vind je drie nette, praktische slaapkamers. Licht, fris en strak afgewerkt—ideaal
als kinderkamer, (thuis)werkkamer, hobbyruimte of walk-in closet. De badkamer is modern en compleet:
een heerlijk ligbad, ruime douche, dubbele wastafel en een tweede toilet. Alles bij elkaar, gewoon
superhandig ingedeeld.
De tweede verdieping mag er ook zijn! Door de aanwezigheid van een grote dakkapel is hier een royale
vierde slaapkamer ontstaan. Daarnaast vind je hier een aparte wasruimte (lekker uit het zicht), waarop je
de wasmachine, droger en extra opbergruimte kwijt kunt. Hier heb je dus écht lekker veel plek voor het
hele gezin én al je spullen.
Tuin
**Een tuin om blij van te worden**
Heb je groene vingers, houd je van zon(nen) of kunnen je kinderen niet wachten om buiten te spelen? De
achtertuin – een fijne 100 m² groot en gelegen op het zuidoosten – is precies wat je zoekt. Lekker veel
privacy, een handige achterom, een fietsenberging én het paradepaardje: een glazen veranda. Dankzij de
schuifdeuren zit je hier altijd fijn, óók als het weer net even niet meezit. 's Ochtends de eerste zonnestralen
of 's avonds lang natafelen onder het zachte licht: zeg nou zelf, wie wil dat nou niet?
Heb je groene vingers, houd je van zon(nen) of kunnen je kinderen niet wachten om buiten te spelen? De
achtertuin – een fijne 100 m² groot en gelegen op het zuidoosten – is precies wat je zoekt. Lekker veel
privacy, een handige achterom, een fietsenberging én het paradepaardje: een glazen veranda. Dankzij de
schuifdeuren zit je hier altijd fijn, óók als het weer net even niet meezit. 's Ochtends de eerste zonnestralen
of 's avonds lang natafelen onder het zachte licht: zeg nou zelf, wie wil dat nou niet?
Bijzonderheden
**Super duurzaam & veilig wonen**
Met energielabel A zit je qua verduurzaming helemaal goed. Door de isolatie van vloer, muren én dak—plus
volledig dubbele beglazing—Vloerverwarming op de begane grond en 1e verdieping heb je niet alleen een
lage energierekening, maar ook een heel comfortabel binnenklimaat. Ook qua veiligheid zit het snor: de
woning voldoet aan hedendaagse normen voor brandveiligheid en inbraakpreventie. Dat is pas ontspannen
wonen!
Met energielabel A zit je qua verduurzaming helemaal goed. Door de isolatie van vloer, muren én dak—plus
volledig dubbele beglazing—Vloerverwarming op de begane grond en 1e verdieping heb je niet alleen een
lage energierekening, maar ook een heel comfortabel binnenklimaat. Ook qua veiligheid zit het snor: de
woning voldoet aan hedendaagse normen voor brandveiligheid en inbraakpreventie. Dat is pas ontspannen
wonen!
Kenmerken
| Overdracht | |
|---|---|
| Referentienummer | KM1453284 |
| Vraagprijs | € 475.000,- k.k. |
| Inrichting | Ja |
| Inrichting | Gestoffeerd |
| Status | Verkocht |
| Aanvaarding | In overleg |
| Aangeboden sinds | Dinsdag 13 januari 2026 |
| Laatste wijziging | Maandag 23 februari 2026 |
| Bouw | |
|---|---|
| Type object | Woonhuis, eengezinswoning, hoekwoning |
| Soort bouw | Bestaande bouw |
| Bouwperiode | 2011 |
| Dakbedekking | Dakpannen |
| Type dak | Zadeldak |
| Keurmerken | Beveiliging Brandveiligheid |
| Isolatievormen | Dakisolatie Dubbel glas HR-glas Kierdichting Muurisolatie Spouwmuren Vloerisolatie Volledig geïsoleerd |
| Oppervlaktes en inhoud | |
|---|---|
| Perceeloppervlakte | 168 m² |
| Woonoppervlakte | 148,7 m² |
| Inhoud | 540 m³ |
| Oppervlakte externe bergruimte | 6,2 m² |
| Indeling | |
|---|---|
| Aantal bouwlagen | 3 |
| Aantal kamers | 4 (waarvan 4 slaapkamers) |
| Aantal badkamers | 1 |
| Tuin | |
|---|---|
| Type | Achtertuin |
| Hoofdtuin | Ja |
| Oriëntering | Zuidoost |
| Heeft een achterom | Ja |
| Staat | Goed onderhouden |
| Energieverbruik | |
|---|---|
| Energielabel | A |
| Energie-index | 1,2 |
| CV ketel | |
|---|---|
| CV ketel | Intergas HRE |
| Warmtebron | Gas |
| Bouwjaar | 2011 |
| Combiketel | Ja |
| Eigendom | Eigendom |
| Uitrusting | |
|---|---|
| Warm water | CV-ketel |
| Verwarmingssysteem | Airconditioning Centrale verwarming Vloerverwarming (gedeeltelijk) |
| Ventilatie methode | Mechanische ventilatie |
| Keukenvoorzieningen | Inbouwapparatuur |
| Badkamervoorzieningen | Inloopdouche Ligbad Toilet Wastafelmeubel |
| Heeft airco | Ja |
| Heeft kabel-tv | Ja |
| Glasvezelaansluiting aanwezig | Ja |
| Tuin aanwezig | Ja |
| Beschikt over een internetverbinding | Ja |
| Heeft schuur/berging | Ja |
| Heeft zonnepanelen | Ja |
| Heeft ventilatie | Ja |
| Kadastrale gegevens | |
|---|---|
| Kadastrale aanduiding | Deventer B 17510 |
| Perceeloppervlakte | 87 m² |
| Omvang | Deel perceel |
| Kadastrale aanduiding | Deventer B 17387 |
| Perceeloppervlakte | 85 m² |
| Omvang | Deel perceel |
| Kadastrale aanduiding | Deventer B 17386 |
| Perceeloppervlakte | 168 m² |
| Omvang | Geheel perceel |
| Eigendomsituatie | Eigen grond |