Met een eigen account kun je panden volgen, opslaan als favoriet, je zoekprofiel opslaan en jouw eigen notities bij een huis maken.
Verkocht: Douwelerwetering 22, 7417 TV Deventer
€ 275.000,- k.k.
| Type object | Appartement, benedenwoning |
|---|---|
| Aanvaarding | In overleg |
| Woonoppervlakte | 89 m² |
|---|---|
| Status | Verkocht |
Beschrijving
Wonen aan het Water in Deventer: Ontdek Douwelerwetering 22!
Klaar om jouw nieuwe thuis te ontdekken? Kom binnen in dit verrassende 5-kamer appartement aan de Douwelerwetering 22 in Deventer! Hier combineer je het beste van twee werelden: een royale en gelijkvloerse woning mét een heerlijke tuin, en dat alles op een toplocatie direct aan het water. Zie jij jezelf hier straks al barbecueën met vrienden of genieten van de ochtendzon?
Ruimte, Licht en Comfort: Even Voorstellen
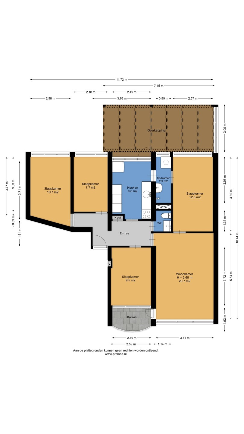
Op zoek naar meer ruimte? Dit appartement verrast je écht. Met maar liefst vier volwaardige slaapkamers biedt deze benedenwoning eindeloos veel mogelijkheden. Denk aan werken vanuit huis, een gameroom voor de kids of een logeerkamer voor gasten. Je stapt binnen via de centrale voordeur – geen gesleep met boodschappen of fietsen over trappen, want je woont hier helemaal gelijkvloers. Super praktisch!
De woonkamer is het bruisende hart van het huis: licht, ruim en gezellig. Of je nu knus op de bank ploft na een drukke dag of juist uitpakt met een groot diner; alles kan hier. Wat me opvalt is het prachtige uitzicht over het water. Je raakt er nooit op uitgekeken!
Strakke Keuken & Praktisch Comfort
De keuken is een pareltje op zich. Modern wit, helemaal van nu en voorzien van alle nodige inbouwapparatuur: denk aan een vaatwasser voor de afwas, een handige oven om te bakken, een gaskookplaat voor het avondeten en natuurlijk een afzuigkap. Vanuit de keuken loop je zó de tuin in – ideaal voor als je buiten wilt koken. De badkamer is gekoppeld aan de keuken en voorzien van een fijne douche en wastafel. Het toilet met fonteintje vind je apart, handig als je gasten hebt.
Zonnige Tuin met Veranda: Jouw Buitenparadijs
Hier wordt het pas echt leuk, want deze tuin is een cadeautje! Met maar liefst 75 m² heb je alle ruimte voor een loungeset, speeltoestel of een grote eettafel voor lange zomeravonden. De aluminium veranda biedt een heerlijke plek voor een gezellige borrel óók als het weer wat minder is. Het achterom maakt het makkelijk en veilig voor kinderen en fietsen. Hier zie je jezelf toch wel zitten, met een drankje in de hand terwijl de kids lekker spelen?
Isolatie & Onderhoud: Klaar voor de Toekomst
Aan comfort is ook gedacht: alle kozijnen zijn vervangen door onderhoudsarm kunststof (bye bye schilderwerk!) en voorzien van isolatieglas. Zo woon je niet alleen energiezuiniger – energielabel C is in the pocket – maar ook lekker stil en comfortabel.
Perfecte Ligging: Alles Dichtbij
En dan de ligging… Tja, wat wil je nog meer? Je woont hier op een fijne plek in Deventer, direct aan het water van de Douwelerwetering. Alles wat je nodig hebt is dichtbij: van basisscholen tot sportclubs, van winkels tot het vernieuwde winkelcentrum Rivierenwijk – allemaal binnen een paar minuten fietsen. Ook de binnenstad, het NS-station en de uitvalswegen bereik je in een mum van tijd. Met openbaar vervoer om de hoek én genoeg parkeergelegenheid voor de deur, is dit wonen zonder gedoe.
Ideale Woning voor Starters en Jonge Gezinnen
Zoek je een eerste eigen plek of wil je groter wonen met je gezin? Douwelerwetering 22 past perfect bij jonge gezinnen en starters die houden van ruimte, vrijheid én een beetje luxe. Dankzij de actieve Vereniging van Eigenaars (€ 155,- per maand) hoef je je geen zorgen te maken over het onderhoud van het gebouw.
Laat je Verrassen: Kom Snel Kijken!
Ben je enthousiast geworden? Wacht niet te lang, want woningen als deze zijn zeldzaam! Maak snel een afspraak voor een bezichtiging en laat je verrassen door de ruimte, het licht en natuurlijk – die geweldige tuin aan het water. Misschien ben jíj straks wel de nieuwe bewoner van Douwelerwetering 22.
Tot snel in Deventer!
Alle kozijnen zijn vervangen door onderhoudsarm kunststof en voorzien van isolerende beglazing.
De ligging is perfect: op korte afstand vind je openbaar vervoer, scholen, sportvoorzieningen en het vernieuwde winkelcentrum van de Rivierenwijk. Ook het centrum van Deventer, het NS-station en diverse uitvalswegen liggen binnen handbereik.
Klaar om jouw nieuwe thuis te ontdekken? Kom binnen in dit verrassende 5-kamer appartement aan de Douwelerwetering 22 in Deventer! Hier combineer je het beste van twee werelden: een royale en gelijkvloerse woning mét een heerlijke tuin, en dat alles op een toplocatie direct aan het water. Zie jij jezelf hier straks al barbecueën met vrienden of genieten van de ochtendzon?
Ruimte, Licht en Comfort: Even Voorstellen
Op zoek naar meer ruimte? Dit appartement verrast je écht. Met maar liefst vier volwaardige slaapkamers biedt deze benedenwoning eindeloos veel mogelijkheden. Denk aan werken vanuit huis, een gameroom voor de kids of een logeerkamer voor gasten. Je stapt binnen via de centrale voordeur – geen gesleep met boodschappen of fietsen over trappen, want je woont hier helemaal gelijkvloers. Super praktisch!
De woonkamer is het bruisende hart van het huis: licht, ruim en gezellig. Of je nu knus op de bank ploft na een drukke dag of juist uitpakt met een groot diner; alles kan hier. Wat me opvalt is het prachtige uitzicht over het water. Je raakt er nooit op uitgekeken!
Strakke Keuken & Praktisch Comfort
De keuken is een pareltje op zich. Modern wit, helemaal van nu en voorzien van alle nodige inbouwapparatuur: denk aan een vaatwasser voor de afwas, een handige oven om te bakken, een gaskookplaat voor het avondeten en natuurlijk een afzuigkap. Vanuit de keuken loop je zó de tuin in – ideaal voor als je buiten wilt koken. De badkamer is gekoppeld aan de keuken en voorzien van een fijne douche en wastafel. Het toilet met fonteintje vind je apart, handig als je gasten hebt.
Zonnige Tuin met Veranda: Jouw Buitenparadijs
Hier wordt het pas echt leuk, want deze tuin is een cadeautje! Met maar liefst 75 m² heb je alle ruimte voor een loungeset, speeltoestel of een grote eettafel voor lange zomeravonden. De aluminium veranda biedt een heerlijke plek voor een gezellige borrel óók als het weer wat minder is. Het achterom maakt het makkelijk en veilig voor kinderen en fietsen. Hier zie je jezelf toch wel zitten, met een drankje in de hand terwijl de kids lekker spelen?
Isolatie & Onderhoud: Klaar voor de Toekomst
Aan comfort is ook gedacht: alle kozijnen zijn vervangen door onderhoudsarm kunststof (bye bye schilderwerk!) en voorzien van isolatieglas. Zo woon je niet alleen energiezuiniger – energielabel C is in the pocket – maar ook lekker stil en comfortabel.
Perfecte Ligging: Alles Dichtbij
En dan de ligging… Tja, wat wil je nog meer? Je woont hier op een fijne plek in Deventer, direct aan het water van de Douwelerwetering. Alles wat je nodig hebt is dichtbij: van basisscholen tot sportclubs, van winkels tot het vernieuwde winkelcentrum Rivierenwijk – allemaal binnen een paar minuten fietsen. Ook de binnenstad, het NS-station en de uitvalswegen bereik je in een mum van tijd. Met openbaar vervoer om de hoek én genoeg parkeergelegenheid voor de deur, is dit wonen zonder gedoe.
Ideale Woning voor Starters en Jonge Gezinnen
Zoek je een eerste eigen plek of wil je groter wonen met je gezin? Douwelerwetering 22 past perfect bij jonge gezinnen en starters die houden van ruimte, vrijheid én een beetje luxe. Dankzij de actieve Vereniging van Eigenaars (€ 155,- per maand) hoef je je geen zorgen te maken over het onderhoud van het gebouw.
Laat je Verrassen: Kom Snel Kijken!
Ben je enthousiast geworden? Wacht niet te lang, want woningen als deze zijn zeldzaam! Maak snel een afspraak voor een bezichtiging en laat je verrassen door de ruimte, het licht en natuurlijk – die geweldige tuin aan het water. Misschien ben jíj straks wel de nieuwe bewoner van Douwelerwetering 22.
Tot snel in Deventer!
Alle kozijnen zijn vervangen door onderhoudsarm kunststof en voorzien van isolerende beglazing.
De ligging is perfect: op korte afstand vind je openbaar vervoer, scholen, sportvoorzieningen en het vernieuwde winkelcentrum van de Rivierenwijk. Ook het centrum van Deventer, het NS-station en diverse uitvalswegen liggen binnen handbereik.
Kenmerken
| Overdracht | |
|---|---|
| Referentienummer | KM1453285 |
| Vraagprijs | € 275.000,- k.k. |
| Inrichting | Ja |
| Inrichting | Gestoffeerd |
| Status | Verkocht |
| Aanvaarding | In overleg |
| Aangeboden sinds | Woensdag 10 december 2025 |
| Laatste wijziging | Woensdag 18 februari 2026 |
| Bouw | |
|---|---|
| Type object | Appartement, benedenwoning |
| Woonlaag | 1e woonlaag |
| Soort bouw | Bestaande bouw |
| Toegankelijkheid | Senioren |
| Bouwperiode | 1960 |
| Dakbedekking | Bitumen |
| Type dak | Platdak |
| Keurmerken | Beveiliging |
| Isolatievormen | Dubbel glas HR-glas |
| Oppervlaktes en inhoud | |
|---|---|
| Woonoppervlakte | 89 m² |
| Inhoud | 328 m³ |
| Oppervlakte externe bergruimte | 5 m² |
| Oppervlakte gebouwgebonden buitenruimte | 26 m² |
| Indeling | |
|---|---|
| Aantal bouwlagen | 1 |
| Aantal kamers | 4 (waarvan 4 slaapkamers) |
| Aantal badkamers | 1 |
| Tuin | |
|---|---|
| Type | Achtertuin |
| Hoofdtuin | Ja |
| Oriëntering | Zuidoost |
| Heeft een achterom | Ja |
| Staat | Normaal |
| Energieverbruik | |
|---|---|
| Energielabel | C |
| Energie-index | 1,8 |
| Uitrusting | |
|---|---|
| Warm water | Geiser |
| Verwarmingssysteem | Blokverwarming |
| Badkamervoorzieningen | Douche Wastafelmeubel |
| Heeft kabel-tv | Ja |
| Tuin aanwezig | Ja |
| Beschikt over een internetverbinding | Ja |
| Vereniging van Eigenaren | |
|---|---|
| Ingeschreven bij de KvK | Ja |
| Jaarlijkse vergadering | Ja |
| Periodieke bijdrage | Ja |
| Reservefonds | Ja |
| Meer jaren onderhoudsplan | Ja |
| Onderhoudsverwachting | Ja |
| Opstal verzekering | Ja |
| Kadastrale gegevens | |
|---|---|
| Kadastrale aanduiding | Deventer G 523 |
| Omvang | Appartementsrecht of complex |
| Eigendomsituatie | Eigen grond |
| Indexnummer | 2 |